Houten saunahuisje Puolanka – 520 x 451 cm – Wanddikte 40 mm
- Grote buitensauna met drie aparte ruimtes
- Gemaakt van geschaafd, onbehandeld vurenhout


Plus- en minpunten
Gemaakt van 40 mm dik onbehandeld vurenhout
Ruim model met drie gescheiden ruimtes
Plat dak voor moderne uitstraling en efficiënte afwatering
Inclusief houten vloer en elzenhouten banken
Kachel en afvoer niet inbegrepen
Specificaties
- Wanddikte
- 40 mm
- Materiaal
- Hout
- Houtsoort
- Vuren
- Breedte
- 451 cm
- Diepte
- 520 cm
Houten saunahuisje Puolanka – 520 x 451 cm – Wanddikte 40 mm
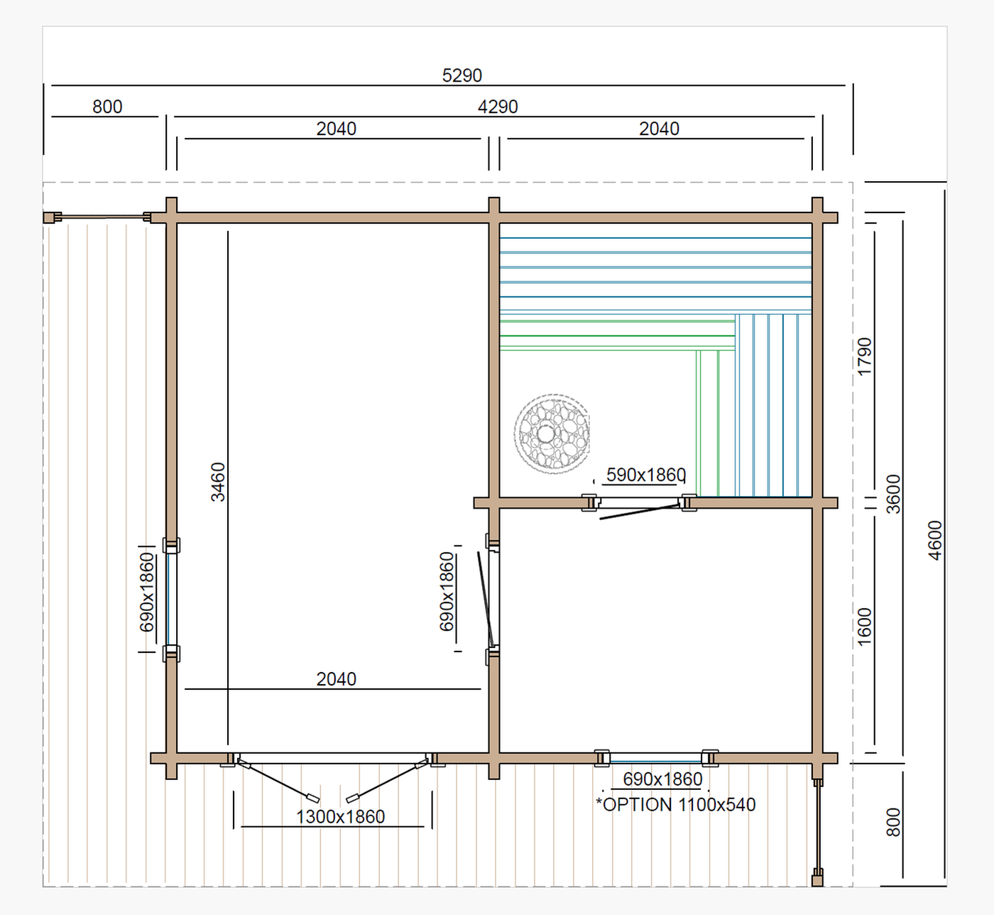
Het houten saunahuisje Puolanka is de perfecte keuze voor wie veel ruimte en comfort zoekt. Dit royale model is volledig gemaakt van geschaafd, onbehandeld vurenhout van 40 mm dik en combineert een strakke moderne vorm met de natuurlijke uitstraling van hout. Met een binnenruimte van 14,1 m² en een inhoud van 35 m³ is de Puolanka geschikt voor zes tot acht personen. Ideaal voor gezinnen of voor wie graag met vrienden geniet van een ontspannen saunabeleving in eigen tuin.
Ruim en doordacht ingedeeld
De Puolanka is praktisch opgebouwd uit drie aparte ruimtes, zodat elke zone zijn eigen functie heeft. De voorruimte dient perfect als kleedruimte of rustplek, terwijl de saunaruimte zelf is uitgerust met twee elzenhouten banken op verschillende hoogtes. De binnendeuren zijn van bronsgetint gehard glas, wat zorgt voor privacy en een sfeervolle lichtval. Dankzij de dubbele afsluitbare buitendeur en twee te openen ramen voelt de ruimte licht, open en uitnodigend aan.
Vrije keuze in kacheltype
Deze sauna kan worden gecombineerd met zowel een elektrische als houtgestookte kachel. De Harvia Legend zorgt voor snel gebruiksgemak met nauwkeurige temperatuurregeling, terwijl de Harvia Linear 18 Compact de authentieke warmte van houtstook biedt. Beide kachels zijn los verkrijgbaar via de samenstelopties. Bij de keuze voor een houtkachel is ook een passende rookafvoerset nodig voor een veilige installatie.
Behandeling en onderhoud
Omdat het hout onbehandeld wordt geleverd, adviseren we om de buitenzijde te voorzien van een beschermende beits of olie. Zo blijft het beter bestand tegen vocht, zon en temperatuurschommelingen. Het glad geschaafde oppervlak is eenvoudig te onderhouden en regelmatig schoonmaken van de banken houdt het interieur fris en hygiënisch. Een goed onderhouden Puolanka behoudt jarenlang zijn kwaliteit en natuurlijke uitstraling.
Extra accessoires voor jouw comfort
Met de juiste accessoires maak je van de Puolanka een complete wellnessruimte. Voeg een houten rugsteun toe voor meer comfort of plaats LED-verlichting voor extra sfeer in de avond. Met een accessoireset bestaande uit een houten emmer, opgietlepel, thermometer, hygrometer en zandloper ben je direct klaar voor gebruik. Daarnaast zijn saunastenen, stoomgeursets en een brandhoutmand beschikbaar om jouw sauna helemaal af te maken.
Stel jouw ideale Puolanka-sauna samen via onze keuzemodule en geniet van luxe, ruimte en rust in eigen tuin.





